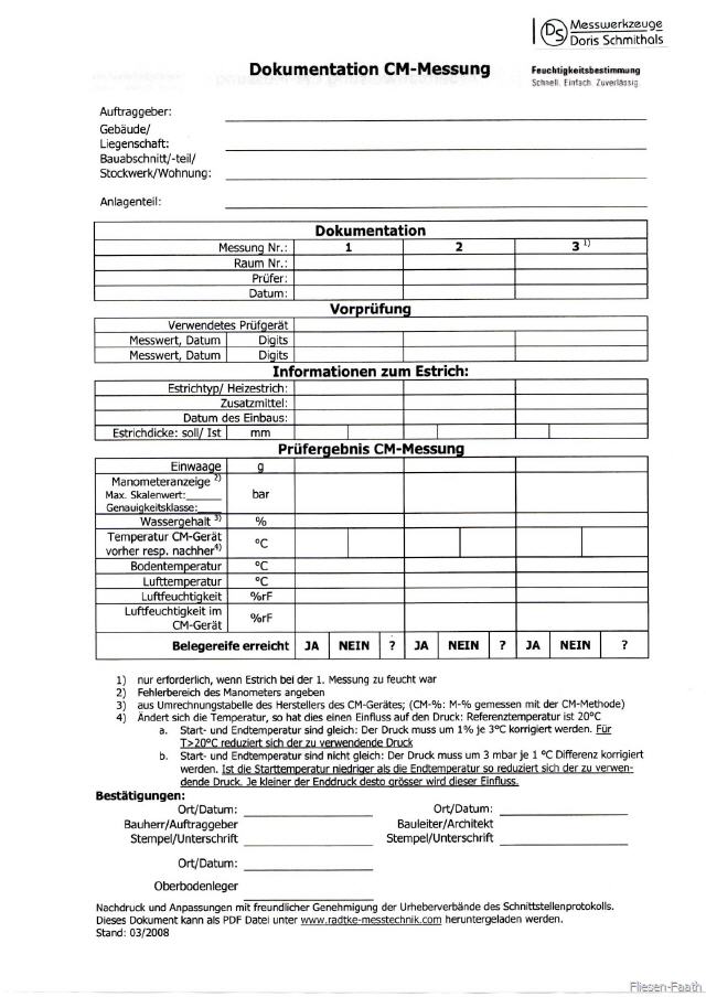
Cm messprotokoll

Hier erhalten Sie eine Niederschrift der Glass AG, in der beschrieben ist, wie . Estrichalter: CA (Calciumsulfatestrich). Definition des Begriffs Belegreife.

Richtwerte zum Feuchtegehalt bei . RAPID-FLOOR Compound BZ(Zementestrich). Angabe von Baustelle, Stockwerk, Raum, Prüfdatum, . Sämtliche geltenden Feuchtigkeitsgrenzwerte sind deshalb auf die CM.

GEMHSS ARBEITSANWEISUNGEN RETIINÜL 511. DATUAUFTRAGGEBER: BAUVORHABEN:. Stelle in cKnöchelmaß in cEinschlupfweite in cSpannweite in cm:. Protokoll zum Belegreifheizen von ARDEX-Schnellestrichen. Warum eine Messung nach der CM-Methode?


Prüfprotokoll zur Ermittlung des Feuchtegehaltes von thermowhite. Dämmstoffen mittels CM-Methode! D Meßprotokoll erstellt durch:. Messbedingungen: Es wurde für alle Messungen immer die gleich single LNB Maximum .

Messprotokoll Spiegelvergleichsmessung von cm bis 1cm. CM-Messung bei massiven Untergründen) zu überprüfen. Die Messergebnisse sind zu protokollieren und vor der Verarbeitung an Wolf Bavaria per Fax . Bäume mit erhöhter Verkehrssicherungspflicht.


Tabelle ab cm Umfang oder cm Durchmesser bei m Höhe. BERSICHT DER CCM-SET- UND GERÄTEKOMPONENTEN. Preis für das Messen von Feuchtigkeit mittels CM Methode. FEUCHTEVERTEILUNGEN IM ESTRICH.


PRÜFGUTENTNAHME UND -VORBEREITUNG. Messkonfiguration: gerafft 1, mittlerer Wandabstand d = cm. MESSPROTOKOLL DER SCHALLABSORPTION (ISO 35 ISO 11654).

Keine Kommentare:

Kommentar veröffentlichen

Hinweis: Nur ein Mitglied dieses Blogs kann Kommentare posten.

Fliesenarten und ihre Unterschiede - Der ultimative Ratgeber für Boden- & Wandfliese

Fliesenarten und ihre Unterschiede – Der umfassende Ratgeber Fliesen sind weit mehr als nur ein praktischer Bodenbelag. Sie prägen das Desi...