Alles, was Sie über den Wasseranschluss von Durchlauferhitzern wissen müssen
Einführung: Verstehen des Wasseranschlusses von Durchlauferhitzern
Durchlauferhitzer sind eine effiziente Möglichkeit, Wasser in Ihrem Zuhause zu erhitzen, ohne einen großen Wasserspeicher zu benötigen. Der Wasseranschluss ist ein entscheidender Aspekt bei der Installation eines Durchlauferhitzers. In diesem Artikel werden wir alles erklären, was Sie über den Wasseranschluss von Durchlauferhitzern wissen müssen.
Die Bedeutung des richtigen Wasseranschlusses
Ein korrekter Wasseranschluss ist entscheidend für die optimale Leistung Ihres Durchlauferhitzers. Wenn der Wasseranschluss nicht ordnungsgemäß installiert ist, kann dies zu Problemen wie unzureichender Wassererwärmung, Druckabfall oder sogar Schäden am Gerät führen. Daher ist es wichtig, die richtigen Maße und Installationsschritte zu kennen.
Maße und Spezifikationen für den Wasseranschluss
Rohrdurchmesser und Materialien
Bei der Auswahl der Rohre für den Wasseranschluss Ihres Durchlauferhitzers ist es wichtig, den richtigen Durchmesser und das geeignete Material zu berücksichtigen. Für optimale Ergebnisse empfehlen wir die Verwendung von Kupferrohren mit einem Durchmesser von mindestens 1/2 Zoll.
Abstände und Platzbedarf
Es ist wichtig, ausreichend Platz um den Wasseranschluss herum zu lassen, um eine ordnungsgemäße Installation und Wartung zu ermöglichen. Stellen Sie sicher, dass genügend Platz für den Zugang zu den Anschlüssen und für eventuelle Reparaturen vorhanden ist.
Wasserdruck und Durchflussmenge
Ein angemessener Wasserdruck und eine ausreichende Durchflussmenge sind entscheidend für die effiziente Funktion Ihres Durchlauferhitzers. Überprüfen Sie den Wasserdruck in Ihrem Haus und stellen Sie sicher, dass er den Anforderungen des Durchlauferhitzers entspricht.
Schritte zur Installation des Wasseranschlusses
Schritt 1: Vorbereitung
Vor der Installation des Wasseranschlusses müssen Sie sicherstellen, dass alle benötigten Materialien und Werkzeuge vorhanden sind. Dazu gehören Rohre, Armaturen, Dichtungsmittel und ein Rohrschneider.
Schritt 2: Messen und Schneiden
Messen Sie die benötigte Länge der Rohre und schneiden Sie sie mit einem Rohrschneider auf die richtige Größe. Stellen Sie sicher, dass die Schnitte gerade und sauber sind, um Undichtigkeiten zu vermeiden.
Schritt 3: Montage der Armaturen
Montieren Sie die Armaturen gemäß den Anweisungen des Herstellers. Stellen Sie sicher, dass alle Verbindungen fest und sicher sind, um Undichtigkeiten zu vermeiden.
Schritt 4: Anschluss an den Durchlauferhitzer
Schließen Sie die Rohre an den Durchlauferhitzer an und sichern Sie sie mit den entsprechenden Befestigungselementen. Überprüfen Sie alle Verbindungen sorgfältig, um sicherzustellen, dass sie dicht sind.
Schritt 5: Prüfung und Inbetriebnahme
Nach der Installation des Wasseranschlusses müssen Sie den Durchlauferhitzer auf Undichtigkeiten und ordnungsgemäße Funktion überprüfen. Führen Sie eine gründliche Prüfung durch und nehmen Sie bei Bedarf Anpassungen vor, bevor Sie den Durchlauferhitzer in Betrieb nehmen.
Ein korrekter Wasseranschluss ist entscheidend für die effiziente Funktion Ihres Durchlauferhitzers. Indem Sie die richtigen Maße und Installationsschritte beachten, können Sie sicherstellen, dass Ihr Durchlauferhitzer optimal arbeitet und Ihnen zuverlässig warmes Wasser liefert.
Um einen Durchlauferhitzer ordnungsgemäß anzuschließen, ist es wichtig, die richtigen Wasseranschlüsse und Rohrdurchmesser zu verwenden. Hier sind einige wichtige Überlegungen:
Wasseranschluss für Durchlauferhitzer
Für die meisten Durchlauferhitzer ist ein Wasseranschluss mit einem Standardgewinde von 1/2 Zoll ausreichend. Dieser Anschluss ermöglicht eine einfache Installation und eine zuverlässige Verbindung mit den Wasserleitungen.
Rohrdurchmesser für Durchlauferhitzer
Der Rohrdurchmesser für einen Durchlauferhitzer hängt von der Leistung des Geräts und dem Wasserdurchfluss ab. In der Regel werden Rohre mit einem Durchmesser von 1/2 bis 3/4 Zoll verwendet, um einen ausreichenden Wasserdurchfluss zu gewährleisten und den Druckverlust zu minimieren.
Anschlüsse eines Durchlauferhitzers
Ein Durchlauferhitzer verfügt in der Regel über folgende Anschlüsse:
- Wasserzulauf: Hier wird das kalte Wasser zugeführt, das dann durch das Heizelement erwärmt wird.
- Warmwasserauslauf: Hier wird das erwärmte Wasser abgegeben und zum Verbraucherpunkt geleitet, z.B. Dusche oder Waschbecken.
- Stromanschluss: Ein Durchlauferhitzer benötigt einen Stromanschluss, entweder über eine Steckdose oder eine festverdrahtete Installation, um das Heizelement zu betreiben.
Leitung für Durchlauferhitzer
Die Leitung für einen Durchlauferhitzer sollte aus einem hitzebeständigen Material wie Kupfer oder Edelstahl bestehen, um den hohen Temperaturen standzuhalten. Es ist wichtig, dass die Leitung ausreichend dimensioniert ist, um den Strombedarf des Durchlauferhitzers zu unterstützen und einen reibungslosen Betrieb zu gewährleisten.
Bei der Installation eines Durchlauferhitzers ist es ratsam, einen qualifizierten Installateur zu konsultieren, um sicherzustellen, dass alle Anschlüsse und Leitungen den örtlichen Vorschriften und Sicherheitsstandards entsprechen.
Optimale Maße für Durchlauferhitzer: Eine umfassende Anleitung
In der heutigen Zeit, in der Energieeffizienz und Nachhaltigkeit eine immer größere Rolle spielen, sind Durchlauferhitzer eine beliebte Wahl für die Bereitstellung von warmem Wasser in Wohn- und Gewerbegebäuden. Doch bei der Auswahl und Installation eines Durchlauferhitzers gibt es zahlreiche Faktoren zu berücksichtigen, um sicherzustellen, dass er optimal funktioniert und den Bedürfnissen der Nutzer entspricht. In diesem Artikel werden wir uns ausführlich mit den Maßen von Durchlauferhitzern befassen und Ihnen eine umfassende Anleitung bieten, um sicherzustellen, dass Sie die richtige Wahl treffen.
Die richtigen Maße für Ihren Durchlauferhitzer
Die Maße eines Durchlauferhitzers spielen eine entscheidende Rolle bei der Auswahl und Installation dieses Geräts. Zu den wichtigen Faktoren gehören die Höhe, Breite und Tiefe des Durchlauferhitzers, sowie die Anforderungen an den Wasseranschluss und die Absicherung. Hier sind einige wichtige Punkte, die Sie beachten sollten:
Höhe, Breite und Tiefe
Die Höhe, Breite und Tiefe des Durchlauferhitzers hängen von verschiedenen Faktoren ab, einschließlich des verfügbaren Platzes in Ihrem Haus oder Ihrer Wohnung. Es ist wichtig, die genauen Maße des Durchlauferhitzers zu kennen, um sicherzustellen, dass er in den vorgesehenen Raum passt.
Wasseranschluss und Absicherung
Ein weiterer wichtiger Aspekt bei der Auswahl eines Durchlauferhitzers sind die Anforderungen an den Wasseranschluss und die Absicherung. Stellen Sie sicher, dass der Durchlauferhitzer über die richtigen Anschlüsse verfügt und dass die elektrische Absicherung den Anforderungen entspricht, um einen sicheren Betrieb zu gewährleisten.
Vaillant Durchlauferhitzer: Die optimalen Maße
Die Marke Vaillant steht seit vielen Jahren für Qualität und Zuverlässigkeit im Bereich der Heizungs- und Warmwassertechnik. Wenn Sie sich für einen Vaillant Durchlauferhitzer entscheiden, können Sie sicher sein, ein hochwertiges Produkt zu erhalten, das Ihren Anforderungen entspricht. Hier sind die optimalen Maße für einen Vaillant Durchlauferhitzer:
- Höhe: 55 cm
- Breite: 45 cm
- Tiefe: 15 cm
- Wasseranschluss: Standardanschluss für Warm- und Kaltwasser
- Absicherung: 21 kW
Montage und Bedienung von Durchlauferhitzern
Die Montage und Bedienung eines Durchlauferhitzers sollten immer gemäß den Anweisungen des Herstellers erfolgen. Hier sind einige allgemeine Tipps für die Montage und Bedienung von Durchlauferhitzern:
- Stellen Sie sicher, dass der Durchlauferhitzer ordnungsgemäß installiert ist und alle Anschlüsse festgezogen sind.
- Überprüfen Sie regelmäßig den Wasserdruck und die Temperatur, um sicherzustellen, dass der Durchlauferhitzer einwandfrei funktioniert.
- Befolgen Sie die Anweisungen des Herstellers zur Einstellung der gewünschten Wassertemperatur und zur Nutzung der verschiedenen Funktionen des Durchlauferhitzers.
Stiebel Eltron Durchlauferhitzer: Montage und Störungsbeseitigung
Stiebel Eltron ist eine weitere angesehene Marke im Bereich der Durchlauferhitzer. Hier sind einige wichtige Punkte zur Montage und Störungsbeseitigung bei Stiebel Eltron Durchlauferhitzern:
- Die Montagehöhe für Stiebel Eltron Durchlauferhitzer beträgt in der Regel etwa 1,8 bis 2 Meter über dem Boden.
- Wenn Sie auf Probleme mit Ihrem Stiebel Eltron Durchlauferhitzer stoßen, konsultieren Sie die Bedienungsanleitung oder wenden Sie sich an einen qualifizierten Fachmann, um das Problem zu diagnostizieren und zu beheben.
Bei der Auswahl und Installation eines Durchlauferhitzers sind die richtigen Maße von entscheidender Bedeutung, um einen reibungslosen Betrieb und eine optimale Leistung zu gewährleisten. Indem Sie die in diesem Artikel bereitgestellten Informationen berücksichtigen und hochwertige Produkte von renommierten Marken wie Vaillant und Stiebel Eltron wählen, können Sie sicher sein, dass Sie die richtige Entscheidung treffen.
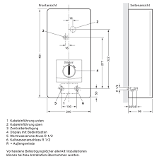
DURCHLAUFERHITZER ELEKTRONISCH: Eine detaillierte Übersicht über Abmessungen und elektrischen Schaltplan
Elektronisch gesteuerte Durchlauferhitzer bieten eine effiziente Lösung für die Bereitstellung von Warmwasser in Wohn- und Gewerbebereichen. Hier sind die Abmessungen und der elektrische Schaltplan dieser innovativen Geräte im Detail beschrieben.
Abmessungen und Wasseranschlüsse
Die Abmessungen eines elektronischen Durchlauferhitzers variieren je nach Modell und Hersteller. Ein typisches Modell wie das DE21244 hat beispielsweise Abmessungen von 100 x 120 x 140 Zentimetern. Die Wasseranschlüsse sind in der Regel Schraubanschlüsse, die eine einfache Installation ermöglichen.
Elektrischer Anschluss und Leistungssteuerung
Die elektrische Installation erfolgt ausschließlich an festverlegte Leitungen, um die Sicherheit zu gewährleisten. Die Leistungssteuerung erfolgt automatisch, wodurch sich die erforderliche Energiemenge an die aktuellen Bedürfnisse anpasst. Dies trägt zur Effizienz des Durchlauferhitzers bei und minimiert den Energieverbrauch.
Produktabmessungen und Anschlussmöglichkeiten
Die Produktabmessungen können je nach Hersteller variieren, aber typischerweise beträgt die Größe eines elektronischen Durchlauferhitzers 120 x 240 x 140 Zentimeter. Zusätzlich zu den festen Anschlüssen können auch flexible Anschlussschläuche verwendet werden, um eine vielseitige Installation zu ermöglichen.
Installation und Kompatibilität
Elektronische Durchlauferhitzer wie der Respekta Thermoflow Elex sind mit verschiedenen Anschlussarten kompatibel, einschließlich Verbundrohren. Die Installationszone gemäß DIN-Normen oder anderen Richtlinien sollte beachtet werden, um eine ordnungsgemäße Installation sicherzustellen.
Temperaturbereich und Sicherheitsmerkmale
Die Durchlauferhitzer sind für einen Temperaturbereich von 0°C bis 75°C ausgelegt und können eine Zulauftemperatur von bis zu 20°C erreichen. Sicherheitsmerkmale wie ein druckfestes Gehäuse und eine Filterüberwachungsanzeige tragen zur Zuverlässigkeit und Langlebigkeit des Geräts bei.
Schlussfolgerung
Elektronische Durchlauferhitzer bieten eine effiziente und zuverlässige Möglichkeit, Warmwasser in verschiedenen Umgebungen bereitzustellen. Durch ihre kompakten Abmessungen, vielseitigen Anschlussmöglichkeiten und automatische Leistungssteuerung sind sie eine ideale Wahl für Wohn- und Gewerbebereiche.
Der Durchlauferhitzer Wasseranschluss ist ein entscheidender Schritt bei der Installation eines Durchlauferhitzers. In diesem Artikel werden wir alle wichtigen Aspekte des Wasseranschlusses für Ihren Durchlauferhitzer behandeln. Von den grundlegenden Schritten bis hin zu spezifischen Maßen und Anforderungen - wir haben alle Informationen, die Sie benötigen.
Stiebel Eltron Durchlauferhitzer Wasseranschluss
Stiebel Eltron ist eine renommierte Marke, die für ihre hochwertigen Durchlauferhitzer bekannt ist. Wenn Sie einen Stiebel Eltron Durchlauferhitzer installieren möchten, ist es wichtig, die spezifischen Anforderungen für den Wasseranschluss zu verstehen. Wir werden Ihnen alle Details geben, die Sie benötigen, um Ihren Stiebel Eltron Durchlauferhitzer ordnungsgemäß anzuschließen.
Durchlauferhitzer Anschließen Wasseranschluss
Das Anschließen eines Durchlauferhitzers an den Wasseranschluss erfordert präzise Kenntnisse und Fachkenntnisse. Wir werden Ihnen Schritt für Schritt erklären, wie Sie Ihren Durchlauferhitzer sicher und effizient anschließen können, um optimale Leistung und Langlebigkeit zu gewährleisten.
Wasseranschluss Küche Durchlauferhitzer
Die Küche ist ein häufiger Ort für die Installation von Durchlauferhitzern. Erfahren Sie, wie Sie den Wasseranschluss in Ihrer Küche für Ihren Durchlauferhitzer vorbereiten können. Wir werden Ihnen auch Tipps geben, wie Sie Platz sparen und die Ästhetik Ihrer Küche verbessern können, während Sie Ihren Durchlauferhitzer installieren.
Wasseranschluss Durchlauferhitzer Montage
Die Montage des Wasseranschlusses für Ihren Durchlauferhitzer ist ein wichtiger Schritt, der sorgfältige Planung und Ausführung erfordert. Wir werden Ihnen die besten Praktiken für die Montage Ihres Durchlauferhitzers geben, damit Sie lange Freude an Ihrem Gerät haben.
Durchlauferhitzer Wasseranschluss Verlängern
Manchmal ist es erforderlich, den Wasseranschluss für Ihren Durchlauferhitzer zu verlängern, um Ihre Installation zu optimieren. Wir werden Ihnen erklären, wie Sie den Wasseranschluss sicher und effektiv verlängern können, ohne die Leistung oder Sicherheit Ihres Durchlauferhitzers zu beeinträchtigen.
Wasseranschluss Maße
Die genauen Maße des Wasseranschlusses für Ihren Durchlauferhitzer sind entscheidend für eine reibungslose Installation. Wir werden Ihnen alle relevanten Maße und Spezifikationen für Ihren Durchlauferhitzer-Wasseranschluss geben, damit Sie sicherstellen können, dass alles perfekt passt.
Durchlauferhitzer Wasseranschluss Aufputz
Wenn Sie Ihren Durchlauferhitzer aufputzen möchten, gibt es spezifische Anforderungen und Überlegungen für den Wasseranschluss. Wir werden Ihnen alle Details geben, die Sie benötigen, um Ihren Durchlauferhitzer sicher und effizient aufzuputzen, damit er optimal funktioniert und gut aussieht.
Durchlauferhitzer Wasseranschluss Unten
Ein Durchlauferhitzer mit einem Wasseranschluss nach unten bietet bestimmte Vorteile und Herausforderungen. Wir werden Ihnen erklären, wie Sie Ihren Durchlauferhitzer sicher und effektiv mit einem Wasseranschluss nach unten installieren können, um die bestmögliche Leistung zu erzielen.
Durchlauferhitzer Wasseranschluss Zoll
Die Zollgröße des Wasseranschlusses ist ein wichtiger Faktor, den Sie bei der Installation Ihres Durchlauferhitzers berücksichtigen müssen. Wir werden Ihnen alle Informationen geben, die Sie benötigen, um sicherzustellen, dass der Wasseranschluss Ihres Durchlauferhitzers perfekt dimensioniert ist.
Durchlauferhitzer Wasseranschluss Passt Nicht
Manchmal kann es vorkommen, dass der Wasseranschluss Ihres Durchlauferhitzers nicht perfekt passt. Wir werden Ihnen Lösungen und Arbeitsschritte geben, um dieses Problem zu beheben und sicherzustellen, dass Ihr Durchlauferhitzer ordnungsgemäß angeschlossen ist.
Fazit
Der Wasseranschluss für Ihren Durchlauferhitzer ist ein entscheidender Schritt, der sorgfältige Planung und Ausführung erfordert. Mit den richtigen Informationen und Anleitungen können Sie sicherstellen, dass Ihr Durchlauferhitzer optimal funktioniert und lange hält. Wenn Sie weitere Fragen haben oder professionelle Hilfe benötigen, zögern Sie nicht, uns zu kontaktieren.

Keine Kommentare:
Kommentar veröffentlichen
Hinweis: Nur ein Mitglied dieses Blogs kann Kommentare posten.